電話アイコン
メールアイコン

WORKS

コージースクエア大和八木

  • BEFORE

    コージースクエア大和八木
  • AFTER

    コージースクエア大和八木
  • BEFORE

    コージースクエア大和八木
  • AFTER

    コージースクエア大和八木

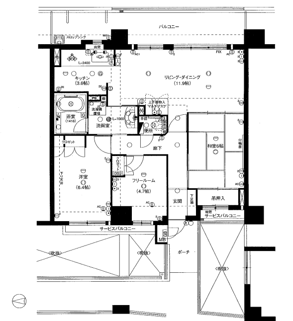
物件情報

コージースクエア大和八木

  • 住所

    奈良県橿原市新賀町

  • マンション名

    コージースクエア大和八木

  • 工事価格

    720万円

  • 専有面積

    72.85㎡

  • 間取り

    3LDK

  • 工事期間

    約2ヶ月

  • ポイント

    リビングは木目を基調とした空間に仕上げましたが、キッチン部分のパネルは濃いめのカラーを選びアクセントにしました。
    同じくリビングのテレビの配置部分にはエコカラットと間接照明を施し、高級感のある雰囲気となっております。

  • コンセプト

    木目調の色合いを少し多めに取り入れ、新築戸建てのような温かみのある空間をイメージして仕上げました。

  • リフォーム箇所

    ・間取変更
    ・キッチン、浴室、トイレ、洗面台、洗濯機パン、給湯器入れ替え
    ・クロス全面貼替
    ・フローリング全面貼替
    ・建具総入れ替え
    ・ハウスクリーニング

CONTACT

お問い合わせ

当社に関してお悩み・ご相談等ございましたら
いつでもお問い合わせください。